For Sale

Morlais Street, Dowlais, Merthyr Tydfil

Bed icon  3    Bath icon  2    receptions icon  2

Fixed Price, £280,000

Save Saved
Contact Us

For further details on this property please call us

01443 218439


Book a Viewing

Features

  • Spacious detached family home on a generous landscaped plot
  • Three large double bedrooms (master to ground floor)
  • Two elegant reception rooms plus a conservatory
  • Modern kitchen/dining room with a separate utility room
  • Stylish bathroom with roll-top bath and additional shower room
  • Ample off-road parking and a garage with a motorised door
  • Well-presented and decorated to a high standard throughout
  • Attractive landscaped gardens offering plenty of outdoor space
  • Sought-after location with excellent transport links and amenities nearby

Full Details

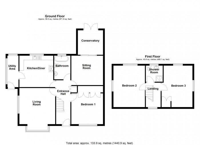
Walker and Lewis are delighted to present this spacious detached property offering generous accommodation throughout and set within a substantial landscaped plot. This beautifully maintained home boasts three double bedrooms, multiple reception rooms, and excellent outdoor space, making it an ideal family home. Internally, the accommodation comprises a traditional entrance hall, a light and welcoming living room, an additional sitting room, a conservatory, and a fitted kitchen/dining room complemented by a separate utility room. The ground floor further benefits from a master bedroom and a stylish bathroom/WC featuring a roll-top bath. On the first floor are two further spacious double bedrooms along with a modern shower room. Externally, the property occupies a generous-sized plot with a beautifully landscaped garden, ample off-road parking, and a garage with a motorised door. Finished to a good standard throughout, this property offers versatile living space both inside and out, and viewings are highly recommended to fully appreciate all it has to offer. Entrance hallway uPVC double glazed entrance door, double radiator, ceramic tiled flooring, and stairs providing access to the first floor accommodation. Living Room 4.18 m x 4.13 m (13'9" x 13'7") Feature uPVC double glazed box window to front, uPVC double glazed window to the side, radiator, ceramic tiled flooring. Sitting Room 3.65 m x 3.40 m (12'0" x 11'2") Radiator, ceramic tiled flooring, patio doors to: Conservatory UPVC double glazed construction with uPVC double glazed windows and double glazed polycarbonate roof, double doors to the rear garden. Kitchen/Diner 3.90 m x 3.64 m (12'10" x 11'11") Fitted with a matching range of base and eye level units with wood worktops over, 1+1/2 bowl sink unit with single drainer and mixer tap, integrated dishwasher, space for a range cooker, uPVC double glazed window to rear, radiator, ceramic tiled flooring, door to: Utility room 3.64 m x 1.28 m (11'11" x 4'2") UPVC double glazed construction, plumbing for an automatic washing machine, space for fridge, freezer, and tumble dryer, ceramic tiled flooring, uPVC double glazed door to front. Bathroom Three piece suite comprising a deep roll top bath with hand shower attachment, pedestal wash hand basin, and close-coupled WC, uPVC obscure double glazed window to rear, radiator. First Floor Landing UPVC double glazed window to front, door to: Bedroom Two 4.80 m x 3.65 m (15'9" x 12'0") UPVC double-glazed windows to the side and rear, double radiator. Bedroom Three 4.80 m x 2.50 m (15'9" x 8'2") UPVC double-glazed windows to the side and rear, loft access, and double radiator. Shower Room/WC Three piece suite comprising tiled shower cubicle with fitted shower, matching shower base and glass screen, wash hand basin with base cupboard and close-coupled WC, uPVC double glazed window to rear, heated towel rail. Outside The property occupies a spacious, well-tended, and landscaped corner plot with ample off-road parking and a garage complete with a motorised door and inspection pit. To the rear, there is a private, low-maintenance garden featuring a paved patio area and well-stocked flower beds, providing the perfect space for relaxing and entertaining.
Floorplan for Morlais Street, Dowlais, Merthyr Tydfil Floorplan for Morlais Street, Dowlais, Merthyr Tydfil
EPC Graph for Morlais Street, Dowlais, Merthyr Tydfil

Book a Viewing

1About You


@

2Pick a Day


  1. This Week
  2. Next Week
  3. In a Fortnight

3Select a Time



About Us

Walker & Lewis Estate Agents are an independent firm of estate agents based in the Pontypridd.

Read More
About Us

Property for sale

View All Properties
Sales

Register

Register for Property Updates

Register Here
Register

Valuation

How much is your property worth? Stop wondering and find out, with a property valuation from Walker & Lewis.

Book Here
Valuation