For Sale

Heolgerrig Road, Merthyr Tydfil, CF48 1SB

Bed icon  3    Bath icon  1    receptions icon  3

Guide Price, £110,000

Save Saved
Contact Us

For further details on this property please call us

01443 218439


Book a Viewing

Features

  • Large double front end terraced property
  • Requires modernisation throughout
  • Four reception rooms
  • No onward chain
  • Large gardens including a driveway to the front garden
  • Sought after village location
  • Close to all amenities

Full Details

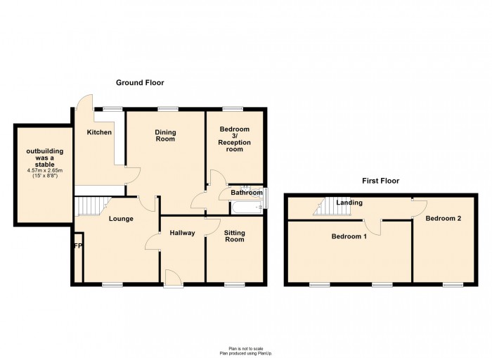
Walker and Lewis are pleased to offer for sale a deceiving end of terraced cottage in the sought after village in Heolgerrig. This double front property has plenty of living space as it boasts three to four rooms to the ground floor, plus one being a third bedroom, and two large double bedrooms to the first floor. Positioned offering a large rear garden ideal for anyone looking to extend the property, plus having an old stable attached to the property which could be used for many different requirements. Set back off the road there is a driveway for parking and conveniently located on the main bus route plus being in walking distance to the Cyfarthfa Retail Park . This property require modernising throughout, once complete will make a lovely family home. no chain Hallway Door to hallway, access to lounge and sitting room Lounge 4.06 m x 4.07 m (13'4" x 13'4") Stone feature fireplace, window to front, stair to first floor landing, access to dining room Sitting Room 3.64 m x 2.88 m (11'11" x 9'5") Window to front Dining room 4.09 m x 3.76 m (13'5" x 12'4") Stone feature fireplace, window to front, access to bathroom and kitchen Kitchen 4.07 m x 2.41 m (13'4" x 7'11") Window and door to rear, wall and base units, worktops , built in storage cupboard Bathroom Bath , low level wc, wash hand basin , window to side Bedroom 3/Reception room 3.74 m x 2.73 m (12'3" x 8'11") Window to rear Landing Access to both bedrooms Bedroom 1 3.08 m x 5.85 m (10'1" x 19'2") Two windows to front Bedroom 2 3.66 m x 2.90 m (12'0" x 9'6") Window to front Front gardens and driveway Tree hedging, gated access to driveway and garden laid with lawn and side access to rear garden Rear garden and outbuilding Large plot with garden laid with lawn and a large outbuilding was a stable with electric Additional Information "This property is for sale by the Modern Method of Auction, meaning the buyer and seller are to Complete within 56 days (the "Reservation Period"). Interested parties personal data will be shared with the Auctioneer (iamsold). If considering buying with a mortgage, inspect and consider the property carefully with your lender before bidding. A Buyer Information Pack is provided. The winning bidder will pay £349.00 including VAT for this pack which you must view before bidding. The buyer signs a Reservation Agreement and makes payment of a non-refundable Reservation Fee of 4.5% of the purchase price including VAT, subject to a minimum of £6,600.00 including VAT. This is paid to reserve the property to the buyer during the Reservation Period and is paid in addition to the purchase price. This is considered within calculations for Stamp Duty Land Tax. Services may be recommended by the Agent or Auctioneer in which they will receive payment from the service provider if the service is taken.
Floorplan for Heolgerrig Road, Merthyr Tydfil, CF48 1SB
EPC Graph for Heolgerrig Road, Merthyr Tydfil, CF48 1SB

Book a Viewing

1About You


@

2Pick a Day


  1. This Week
  2. Next Week
  3. In a Fortnight

3Select a Time



About Us

Walker & Lewis Estate Agents are an independent firm of estate agents based in the Pontypridd.

Read More
About Us

Property for sale

View All Properties
Sales

Register

Register for Property Updates

Register Here
Register

Valuation

How much is your property worth? Stop wondering and find out, with a property valuation from Walker & Lewis.

Book Here
Valuation