For Sale

Mira Mar, Rock Terrace, Ynysybwl, Pontypridd, CF37 3NU

Bed icon  4    Bath icon  4    receptions icon  2

Default, £450,000

Save Saved
Contact Us

For further details on this property please call us

01443 218439


Book a Viewing

Features

  • Outbuilding with all utilities can be used as an office or gym
  • Driveway parking for 3 cars
  • Modernised throughout to a very high standard
  • Good Size utility room
  • Large plot with plenty of outside space
  • Glass hallway with sold wood staircase
  • Far reaching views all around
  • No onward chain
  • Four double bedrooms
  • Two en-suite

Full Details

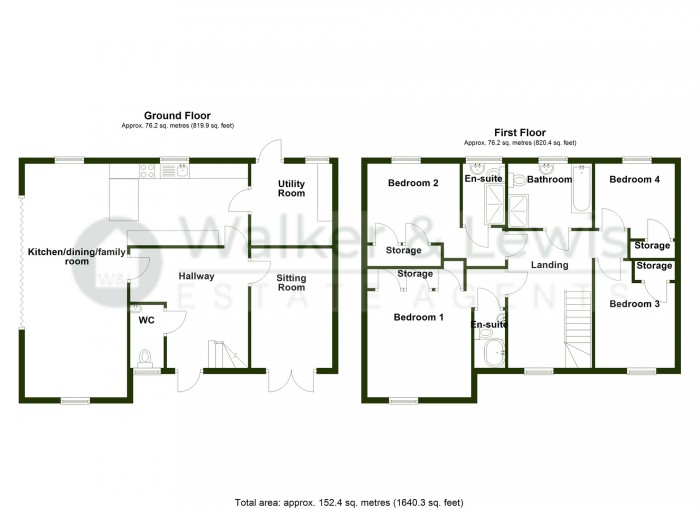
Walker and Lewis are pleased to offer for sale an exceptional size detached property in the rural town on the fringe of the valley in Ynysbwl which a small village with a choice of shops and schools on your door. plus having plenty of walks for anyone who enjoys the outdoors. The property itself is set on an elevated plot where you can enjoy the fabulous far reaching views of the mountains from all aspects of the property, where there is so much natural light in to each room. The four bedroom are all doubles and two having en-suites and the ground floor is all open plan living giving you bi-folding doors to enjoy the views and the outside space all year round, plus a second sitting room you can chill out in. Call to view to appreciate what this large family home has to offer. Hallway Door to hall, ceramic tiled flooring, access to first floor landing and all reception rooms and cloakroom Cloakroom Window to front, low level wc, wash hand basin Sitting Room 3.18 m x 2.86 m (10'5" x 9'5") French doors to front, ceramic tiled flooring Open Plan Lounge/kitchen/Dining/Family Room 7.46 m x 7.53 m (24'6" x 24'8") Bi-folding doors to side garden, window to front and two windows to rear, ceramic tiled flooring, wall and base units, worktops, breakfast bar, built in oven and hob and integrated fridge/freezer, ceramic tiled flooring, access to utility room Utility Room Worktops, window and doors to rear garden and built in storage Landing Window to front, access to all bedrooms and bathroom Bedroom 1 3.29 m x 3.20 m (10'10" x 10'6") Window to front, fitted wardrobes, access to en-suite En-suite Step in bath, low level wc, wash hand basin, skylight Bedroom 2 3.11 m x 3.36 m (10'2" x 11'0") Window to rear, fitted wardrobes, access to en-suite En-suite Window to rear, double family shower cubicle, wash hand basin, low level wc Bathroom Bath, double family shower cubicle, low level wash hand basin, window to rear Bedroom 3 2.68 m x 3.12 m (8'10" x 10'3") Window to front, fitted wardrobes Bedroom 4 2.98 m x 3.11 m (9'9" x 10'2") Window to rear, fitted wardrobe Driveway and front gardens Driveway parking for 3 cars, gated access with steps up to front garden laid with shingle stone Rear and Side garden with outbuilding Laid with lawn and outbuilding with all utilities connected with door to garden ideally can be used as on office. Gym or a bar area to entertain
Floorplan for Mira Mar, Rock Terrace, Ynysybwl, Pontypridd, CF37 3NU
EPC Graph for Mira Mar, Rock Terrace, Ynysybwl, Pontypridd, CF37 3NU

Book a Viewing

1About You


@

2Pick a Day


  1. This Week
  2. Next Week
  3. In a Fortnight

3Select a Time



About Us

Walker & Lewis Estate Agents are an independent firm of estate agents based in the Pontypridd.

Read More
About Us

Property for sale

View All Properties
Sales

Register

Register for Property Updates

Register Here
Register

Valuation

How much is your property worth? Stop wondering and find out, with a property valuation from Walker & Lewis.

Book Here
Valuation