For Sale

Pantyscallog Houses, Pant, Merthyr Tydfil

Bed icon  4    Bath icon  2    receptions icon  2

OIRO, £340,000

Save Saved
Contact Us

For further details on this property please call us

01443 218439


Book a Viewing

Features

  • Beautifully renovated stone-built detached cottage
  • Four bedrooms, including a loft room
  • Externally insulated
  • Spacious kitchen/family room with bi-fold doors
  • Master bedroom with en-suite
  • Stylish new fittings throughout
  • Private rear garden
  • Large garage
  • Quiet village location in Pant
  • Close to all amenities and transport links

Full Details

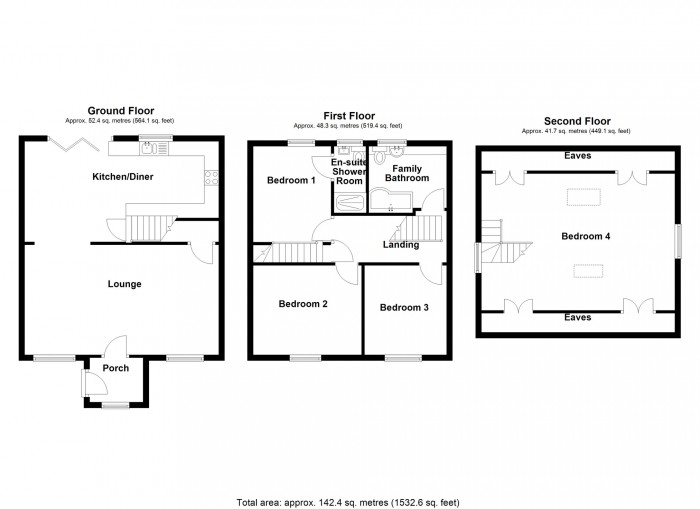
Walker & Lewis are delighted to present this stunning, fully renovated four-bedroom detached stone cottage, located in the highly sought-after village of Pant. Blending original character with modern luxury, this impressive home is offered to the market with no onward chain and is perfect for families seeking space, style, and convenience. The accommodation comprises a welcoming entrance porch, a cosy living room, and a spacious, fully integrated kitchen/family room featuring high-end fittings and bi-fold doors that open onto a private rear garden perfect for entertaining or relaxing. The first floor features three well-proportioned bedrooms, including a master suite with an en-suite bathroom, and a stylish family bathroom. The top floor features an impressive loft room, perfect for serving as a fourth bedroom, home office, Cinema room, or guest suite. Externally, the property benefits from a large garage providing off-road parking, and a private low maintenance garden. Located in a popular residential area close to local amenities, schools, and public transport links, this home truly has it all. Viewings are highly recommended to fully appreciate the quality and space this home has to offer. Entrance Porch uPVC double glazed entrance door, double glazed window to front, radiator, door to: Living Room 6.50 m x 3.80 m (21'4" x 12'6") Two uPVC double glazed windows to front, under stairs storage cupboard, radiator, open plan to: Kitchen/Diner/Family Room 6.70 m x 3.47 m (22'0" x 11'5") Brand new fitted kitchen comprising a matching range of base and eye level units with worktop space over, 1+1/2 bowl sink unit with single drainer and mixer tap, integrated fridge/freezer, dishwasher and automatic washing machine, fitted electric oven, built-in four ring ceramic hob with cokerhood over, uPVC double glazed window to rear, radiator, ceiling spotlights, bi-fold doors to garden. First Floor Landing Smoke detector, doors to three bedrooms, a family bathroom, and to stairs providing access to the loft room/bedroom four. Bedroom One 3.30 m x 2.70 m (10'10" x 8'10") UPVC double glazed window to rear, radiator, door to: En-Suite shower room Three piece suite comprising tiled shower cubicle with fitted shower, matching shower base and glass screen, wash hand basin with base cupboard and a WC with hidden cistern, uPVC obscure double glazed window to rear, heated towel rail. Bedroom Two 3.80 m x 3.10 m (12'6" x 10'2") UPVC double glazed window to front, radiator, cupboard housing a wall mounted gas combination boiler. Bedroom Three 3.20 m x 2.90 m (10'6" x 9'6") UPVC double glazed window to front, radiator. Family Bathroom Three piece suite comprising panelled bath with shower over and glass screen and wash hand basin with base cupboard, WC with hidden cistern, uPVC obscure double glazed window to rear, heated towel rail. Bedroom Four/Loft room 6.70 m x 4.70 m (22'0" x 15'5") Light and spacious room with two skylight windows, uPVC double glazed windows to both sides, sloping ceiling with exposed beams and ceiling spotlights, double doors to boarded eaves. Outside Externally, the property boasts an enclosed front forecourt laid with low-maintenance resin. To the rear, you'll find a private and enclosed garden, beautifully finished with a patio area and artificial lawn, ideal for outdoor entertaining. The garden also offers side access and steps leading up to a larger-than-average garage, which features a roller door, as well as uPVC double glazed windows and a side access door for added convenience.
Floorplan for Pantyscallog Houses, Pant, Merthyr Tydfil Floorplan for Pantyscallog Houses, Pant, Merthyr Tydfil
EPC Graph for Pantyscallog Houses, Pant, Merthyr Tydfil

Book a Viewing

1About You


@

2Pick a Day


  1. This Week
  2. Next Week
  3. In a Fortnight

3Select a Time



About Us

Walker & Lewis Estate Agents are an independent firm of estate agents based in the Pontypridd.

Read More
About Us

Property for sale

View All Properties
Sales

Register

Register for Property Updates

Register Here
Register

Valuation

How much is your property worth? Stop wondering and find out, with a property valuation from Walker & Lewis.

Book Here
Valuation