Sold Subject to Contract

Saxon Street, Merthyr Tydfil

Bed icon  3    Bath icon  1    receptions icon  1

OIRO, £145,000

Save Saved
Contact Us

For further details on this property please call us

01443 218439


Book a Viewing

Features

  • Well presented three-bedroom property
  • Modern bathroom
  • Stylish Shaker-style kitchen
  • Short walk to Brecon Road Infant School
  • Through lounge/dining room
  • Three well-proportioned bedrooms
  • Secure, enclosed, low-maintenance rear garden
  • Ideal first or second-time purchase
  • Viewing highly recommended

Full Details

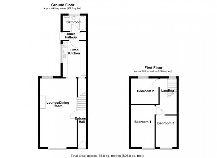
Walker and Lewis are pleased to offer this beautifully presented three-bedroom property, featuring a modern bathroom and a stylish Shaker-style kitchen, and conveniently located within a short walk of Brecon Road Infant School. The accommodation briefly comprises an entrance hallway, a through lounge/dining room, a fitted kitchen, a rear hallway, and a modern bathroom/WC. To the first floor are three well-proportioned bedrooms. Externally, the property benefits from a secure, enclosed, low-maintenance rear garden with an artificial lawn. Further features include gas central heating and uPVC double glazing throughout. The property would make an ideal first or second-time purchase. Viewing is highly recommended to fully appreciate this home. Entrance hallway UPVC double glazed entrance door, stairs providing access to the first floor accommodation, door to: Lounge/Dining Room 6.80 m x 3.60 m (22'4" x 11'10") UPVC double window tothe front and rear, living flame effect gas fire with feature surround, single and double radiators, doorway to: Fitted Kitchen 3.60 m x 2.30 m (11'10" x 7'7") Fitted 'Shaker' style kitchen comprising a matching range of base and eye level units with worktop space over, stainless steel sink unit with single drainer and mixer tap, plumbing for automatic washing machine, fitted oven, built-in four ring gas with extractor hood over, uPVC double glazed window to side, double radiator, matching cupboard housing a wall mounted gas combination boiler, under stairs storage cupboard, door to: Rear hallway UPVC double glazed door to garden, storage cupboard, door to: Bathroom Three piece suite comprising panelled bath with shower over and glass screen, pedestal wash hand basin, and close coupled WC with a tiled surround, uPVC double glazed window to rear, and a heated towel rail. Landing UPVC double glazed window to the rear, door to: Bedroom One 4.00 m x 2.35 m (13'1" x 7'9") Double glazed window to the front, radiator. Bedroom Two 2.73 m x 2.55 m (8'11" x 8'4") UPVC double glazed window to the rear, radiator. Bedroom Three 3.10 m x 2.10 m (10'2" x 6'11") UPVC double glazed window to the front, radiator. Outside Externally, the property benefits from a secure, enclosed, low-maintenance flat rear garden with an artificial lawn and picket fence.
Floorplan for Saxon Street, Merthyr Tydfil Floorplan for Saxon Street, Merthyr Tydfil
EPC Graph for Saxon Street, Merthyr Tydfil

Book a Viewing

1About You


@

2Pick a Day


  1. This Week
  2. Next Week
  3. In a Fortnight

3Select a Time



About Us

Walker & Lewis Estate Agents are an independent firm of estate agents based in the Pontypridd.

Read More
About Us

Property for sale

View All Properties
Sales

Register

Register for Property Updates

Register Here
Register

Valuation

How much is your property worth? Stop wondering and find out, with a property valuation from Walker & Lewis.

Book Here
Valuation