For Sale

Park Terrace, Merthyr Tydfil, CF47 8RF

Bed icon  5    Bath icon  1    receptions icon  3

OIRO, £229,950

Save Saved
Contact Us

For further details on this property please call us

01443 218439


Book a Viewing

Features

  • Substantial bay-fronted traditional family home
  • Offered with no onward chain
  • Three reception rooms, a lounge with a wood burner
  • Modern fitted kitchen
  • Five generously sized bedrooms
  • Gardens to the front and rear
  • Sought-after location in Merthyr Tydfil with excellent transport links

Full Details

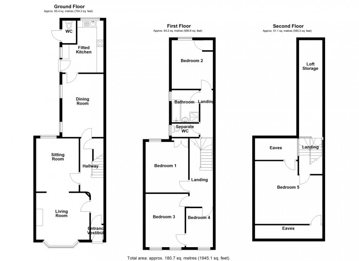
Walker and Lewis are delighted to offer for sale this substantial traditional 5 bedroom bay-fronted family home, situated in a highly desirable location and offered with no onward chain. From the moment you step into the grand entrance hallway, the property’s character and charm are immediately evident, with many original features retained throughout. The home boasts three spacious reception rooms, including a welcoming lounge with a feature wood burner, perfect for cosy evenings. There is also a modern fitted kitchen, ideal for contemporary family living. Upstairs, the property offers five generously sized bedrooms, providing ample space for a growing family. Externally, the home benefits from enclosed gardens to both the front and rear. Ideally positioned in Merthyr Tydfil, the property provides convenient access to the A465 Heads of the Valleys Road, local bus routes, and Merthyr Tydfil railway station, as well as being within close proximity to Merthyr Town Centre, Rhydycar Leisure Park, Cyfarthfa Retail Park, and BikePark Wales. This impressive home combines space, character, and location — early viewing is highly recommended. Entrance Vestibule UPVC double glazed entrance door, door to: Hallway Feature original Victorian tiled flooring, stairs providing access to the first floor accommodation with an under-stairs storage cupboard. Living Room 4.00 m x 4.00 m (13'1" x 13'1") Double glazed bay window to front, fireplace with wood-burning stove with glass door in chimney, tiled hearth, radiator, feature floorboards, picture rail, open plan to: Sitting Room 3.80 m x 3.20 m (12'6" x 10'6") Double glazed window to the rear, double radiator. Dining room 4.70 m x 3.10 m (15'5" x 10'2") Two double glazed windows to the side, original quarry tiled flooring, door to: Fitted Kitchen 3.90 m x 3.10 m (12'10" x 10'2") Fitted with a matching range of base and eye level units with worktop space over, sink unit with single drainer and mixer tap, plumbing for automatic washing machine, fitted eye level double oven, built-in four ring gas hob with cooker hood over, double glazed window to the side and rear, double radiator, ceramic tiled flooring, uPVC double glazed door to side. First Floor Landing Picture rail, stairs providing access to the second floor. Bedroom One 3.80 m x 3.20 m (12'6" x 10'6") Double glazed window to the rear, double radiator, double door to a storage cupboard. Bedroom Two 3.70 m x 3.10 m (12'2" x 10'2") Double glazed window to the rear, radiator, cupboard housing a wall mounted gas combination boiler. Bedroom Three 4.00 m x 3.20 m (13'1" x 10'6") Two double glazed windows to the front, double radiator, door to: Bedroom Four 2.90 m x 2.10 m (9'6" x 6'11") Double glazed window to the front, double radiator. Bathroom Three piece suite comprising panelled bath, pedestal wash hand basin, and tiled shower cubicle with fitted shower, matching shower base and glass screen, tiled surround, double glazed window to side, heated towel rail, and ceramic tiled flooring. WC Double glazed window to the side, close coupled WC. Second Floor Landing Feature double glazed corner window with far reaching views, door to loft storage. Bedroom Five 5.10 m x 4.70 m (16'9" x 15'5") Spacious room with feature floorboards, double glazed window to the front, sloping ceiling, and doors to eave storage. Outside Externally, the home benefits from flat enclosed gardens to both the front and rear, offering excellent outdoor space. And an outbuilding with a WC.
Floorplan for Park Terrace, Merthyr Tydfil, CF47 8RF Floorplan for Park Terrace, Merthyr Tydfil, CF47 8RF
EPC Graph for Park Terrace, Merthyr Tydfil, CF47 8RF

Book a Viewing

1About You


@

2Pick a Day


  1. This Week
  2. Next Week
  3. In a Fortnight

3Select a Time



About Us

Walker & Lewis Estate Agents are an independent firm of estate agents based in the Pontypridd.

Read More
About Us

Property for sale

View All Properties
Sales

Register

Register for Property Updates

Register Here
Register

Valuation

How much is your property worth? Stop wondering and find out, with a property valuation from Walker & Lewis.

Book Here
Valuation